施設・店舗情報
パオレ
ガレリア・ユギ
プラザA
駐車場・駐輪場
パンフレット
かわら版
グルメマップ
南大沢のご紹介
南大沢へのアクセス
南大沢開発の歴史
現在の南大沢
南大沢のこれから
スマートモビリティ
貸物件・イベントスペース
テナント募集
テレワークステーション
ふれあい広場
ガレリア×ギャラリー
イトーヨーカドー店頭スペース
利用状況カレンダー
南大沢コラム
会社案内
ご挨拶
会社概要
経営情報
アクセスマップ
お問い合わせ
TEL:
042-677-1611
お問い合わせ
FAX:042-677-1615
営業受付時間 9:00-17:45 (平日)
News
新着情報
トップページ
新着情報
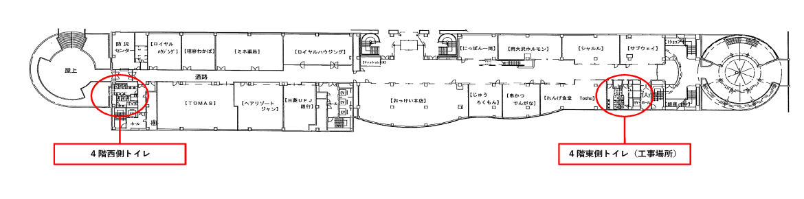
パオレ4階東側トイレの改修工事について
お知らせ
2019.05.09
パオレ4階東側トイレの改修工事について
パオレ4階東側トイレの改修工事に伴い、使用を停止致します。 工事期間中は4階西側、または5階のトイレをご使用くださいますようお願いします。 期間中、お客様にはご不便をお掛けして大変申し訳ございませんが、 ご理解ご協力のほどよろしくお願い申し上げます。 工事期間:2019年5月13日(月)~2019年7月14日(日)予定 パオレ4階(クリックで拡大します)